NAME
ミニヨン 南堀江
LOCATION
大阪市西区南堀江3丁目
ACCESS
Osaka Metro長堀鶴見緑地線・千日前線
「西長堀」駅 徒歩5分
「西長堀」駅 徒歩5分
STRUCTURE / SIZE
竣工:平成17年9月
構造:鉄筋コンクリート造
地上10階建て
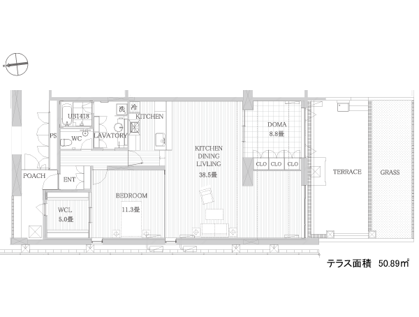
専有面積:43.20m2〜151.68m2
間取り:1ROOM〜2LDK
NOTE
駐車場:有(機械式立体駐車場)
小型犬飼育OK
屋上にドッグラン付
小型犬飼育OK
屋上にドッグラン付

- 各お部屋の間取り図は、下のボタンをクリックするとご覧いただけます。























































































































































































































